CHOUPINET MIDTOWN
Ubicación: Guadalajara, Jal. México | Año: 2025
Arq. Salvador Villicaña | Manttek Retail Construction
Choupinet es una marca mexicana de ropa y accesorios para bebés, fundada por la diseñadora Camila Pietrini en 2018, con sucursales en Ciudad de México, Monterrey, Querétaro, Puebla y actualizando su sucursal de Guadalajara es que se plantea la rehabilitación de dos locales en Plaza Midtown; un centro comercial innovador y vanguardista, que ofrece boutiques de lujo, restaurantes y amplias zonas al aire libre en Guadalajara Jalisco.
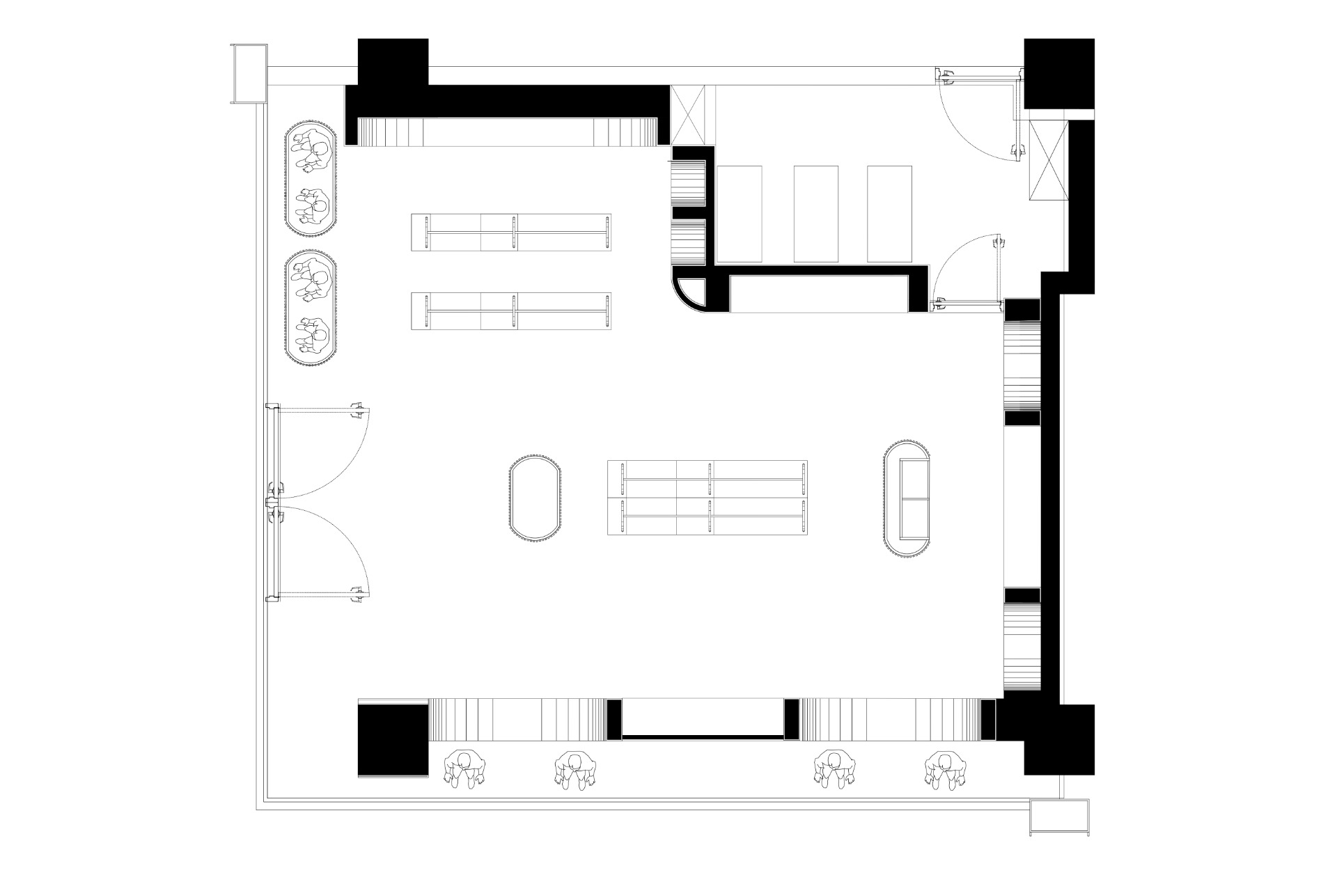
Se plantea demoler el muro divisorio entre ambos locales para formar uno solo, aprovechando el antiguo acceso de la fachada poniente y dejando la fachada sur como exhibidor. Toda el alma del proyecto se ve guiada por los arcos propuestos que enmarca sutilmente los productos exhibidos en sus repisas.
La arquitectura juega un papel importante no solo porque propone un recorrido natural y cómodo para el usuario o por sus espacios que permiten una adecuada exhibición y un trabajo optimo en área de caja y bodega para sus empleadas sino que los acabados, materiales y formas realzan la esencia orgánica, artesanal y cálida de la marca.

