NISSAN RIVERO VALLE
Ubicación: San Pedro Garza García, N.L. México | Año: 2024
M3 Montfort Construcciones | Arq. Salvador Villicaña
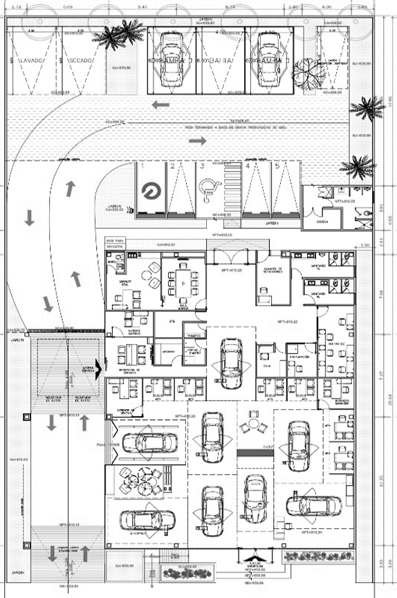
Sobre una de las vialidades más importantes del municipio de San Pedro Garza García; Calzada Valle, nace la agencia Nissan Rivero Valle, para Grupo Rivero. Estratégicamente planteada ante la demanda existente en esta zona de toda la mancha urbana que parte desde el centro de Monterrey.
Uno de sus principales retos, el poco tiempo con el que se contaba para su construcción, por lo que se implementaron técnicas constructivas y materiales de rápida construcción e instalación.
Proponiendo una amplia sala de exhibición al entrar con salas de APV´s, estacionamiento en la parte trasera del terreno, sala de entregas, salas de juntas y de gerentes al fondo de la edificación.
